Nos biens en Italie
Appartement avec vue panoramique
| 2 chambres
| 99 m2
| 
Pourquoi le dernier étage n’est-il pas un inconvénient ?
Parce que le dernier étage se mérite. Et c’est le bon choix : après l’effort, vient la récompense.
Une vue imprenable sur tout et tout le monde, sans obstacle, avec une luminosité extraordinaire. Depuis les fenêtres s’ouvre un panorama à couper le souffle sur la vieille ville de Massa Marittima : de l’ancienne église au clocher de la cathédrale, des collines toujours vertes jusqu’à la mer, avec un spectacle différent chaque soir. Le coucher de soleil, vu d’ici, est tout simplement exceptionnel.
Cet appartement est une opportunité pour ceux qui aiment la beauté et les vues panoramiques, qui, par temps clair, permettent même d’apercevoir les montagnes de Corse.
Le bien est immédiatement prêt à l’emploi et, avec quelques travaux, peut se transformer en une véritable merveille. La répartition des espaces est excellente et l’agencement intérieur peut être revu et personnalisé selon vos besoins.
Venez découvrir la beauté d’une vue unique, capable de vous émerveiller chaque jour.
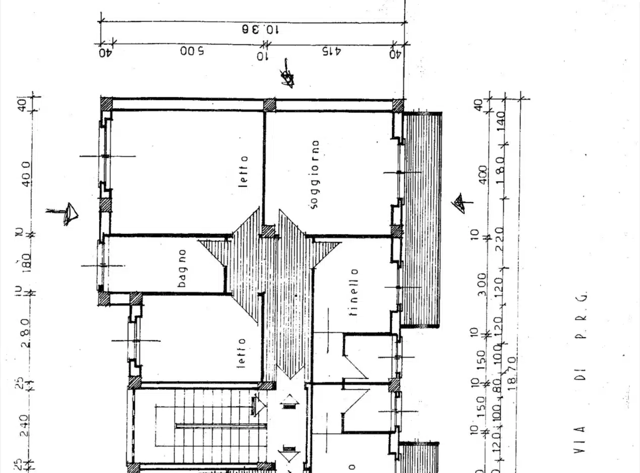
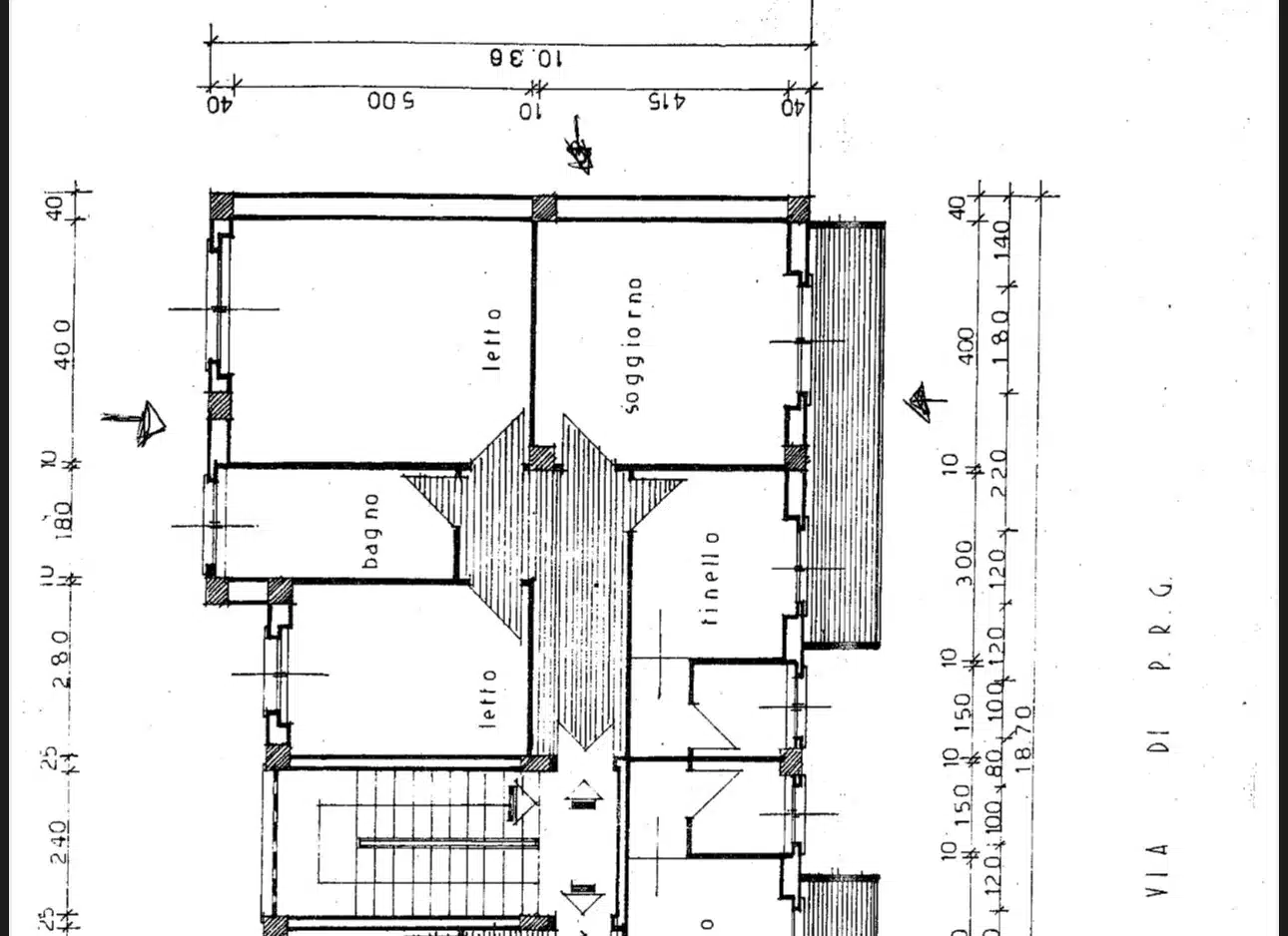
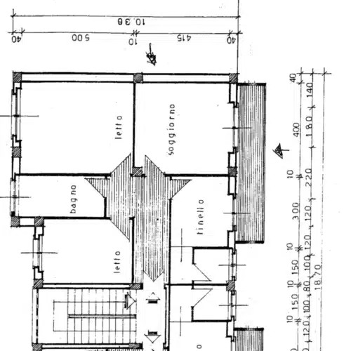
DESCRIPTION DES ESPACESCinquième étage : entrée, salle à manger, kitchenette, grand balcon, salon, deux chambres doubles et salle de bains.
75.000 €
État : bon état
Disponible : À l'acte
Caractéristiques du bien
Lieu
Surface habitable: 99 m2
Garage: 0
Confort
Cuisine: équipée
Chambre(s): 2
Salle(s) de bain: 1
R. cadastral: 325€
Un bien vous plaît ?
Contactez l’agence par e-mail, par téléphone ou via ce formulaire suivant, nous vous recontacterons dans les 48h























